Cappa Snack a parete con motore full optional L1800xP1100xH450mm.
La cappa ha una struttura in acciaio Inox AISI 430 con finitura Scotch-Brite.
Il nostro acciaio è certificato MOCA per uso alimentare.
In dotazione filtri a labirinto in AISI304 antifiamma resistenti alla corrosione e lavabili in lavastoviglie che permettono una facile rimozione dei grassi e rubinetto di scarico grassi.
Il ventilatore è centrifugo monofase a 4 poli.
La cappa viene fornita completa di:
– Luci LED ad incasso.
– Regolatore analogico idoneo a pilotare il ventilatore con motore asincrono monofase. È presente l’interruttore del motore e delle luci della cappa con potenziometro per la regolazione. Un circuito di filtraggio elimina i disturbi in radiofrequenza. Gradi di protezione IP55 e contenitore in PVC.
SU RICHIESTA SI POSSONO ORDINARE I COLLARINI: è necessario comunicare le dimensioni necessarie in base alla misura della piastra quadrata che si innesta sulla cappa (dimensioni più comuni 300×300 mm/400×400 mm) e in base al tubo presente (dimensioni più comuni sono Ø250/300/350 mm).
Le cappe non sono cablate. Il lavoro deve essere eseguito da un elettricista professionista.
LA CAPPA ARRIVA COMPLETA DI VITI PER IL MONTAGGIO
FOTO PURAMENTE INDICATIVA
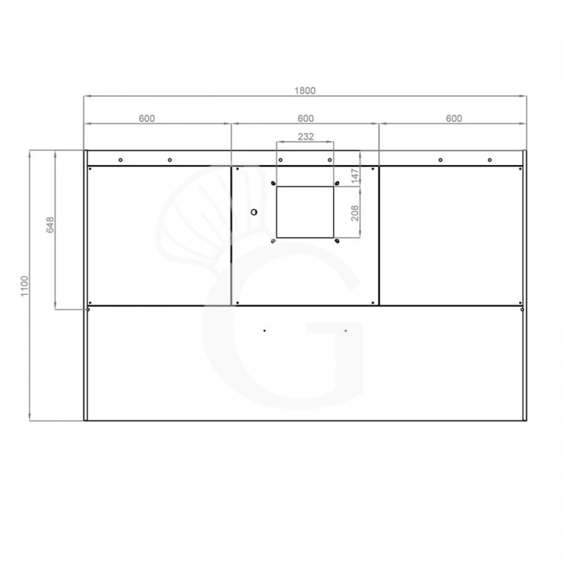
- Profondità cappa
1100 mm - Lunghezza cappa
1800 mm - Altezza cappa
450 mm
- Potenza
0,18 KW - Voltaggio
Monofase – 230 V - Peso
55 Kg - Numero luci
1 x 28 W - Numero filtri
3 filtri 400 x 500 mm - Foro cappa
208 x 232 mm - Portata cappa ( m3/h )
1800 m3/h - Tipologia motore
VE 7/7 – 184 W - Pressione statica (HST)
100 Pa
- Dotazione di serie cappa
Motore, luci LED ad incasso, regolatore analogico, filtri a labirinto, rubinetto di scarico
- Tipologia cappa
Cappa Snack a parete - Motore
Con motore












Recensioni
Ancora non ci sono recensioni.